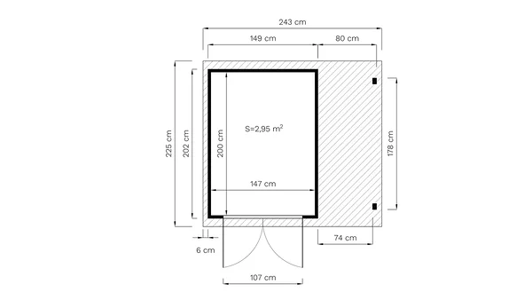
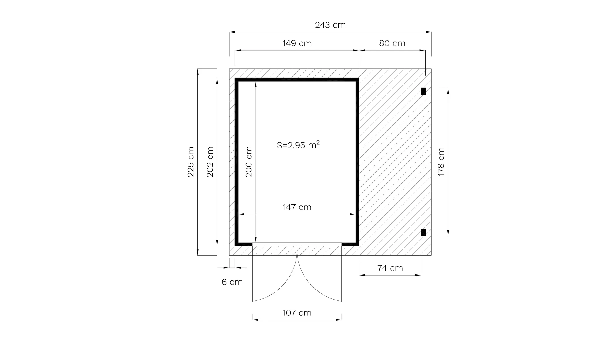
Garden ShedsDesign RangeTonio 1 Plus
Tonio 1 Plus
Wooden Garden products contribute to environmental protection.
The FSC ® label distinguishes those products that have been produced from wood and sourced from environmentally and socially sustainable forests that have been independently certified in accordance with FSC's strict guidelines.






























































































































