ProduitsDesign RangeKiosque 1
Kiosque 1
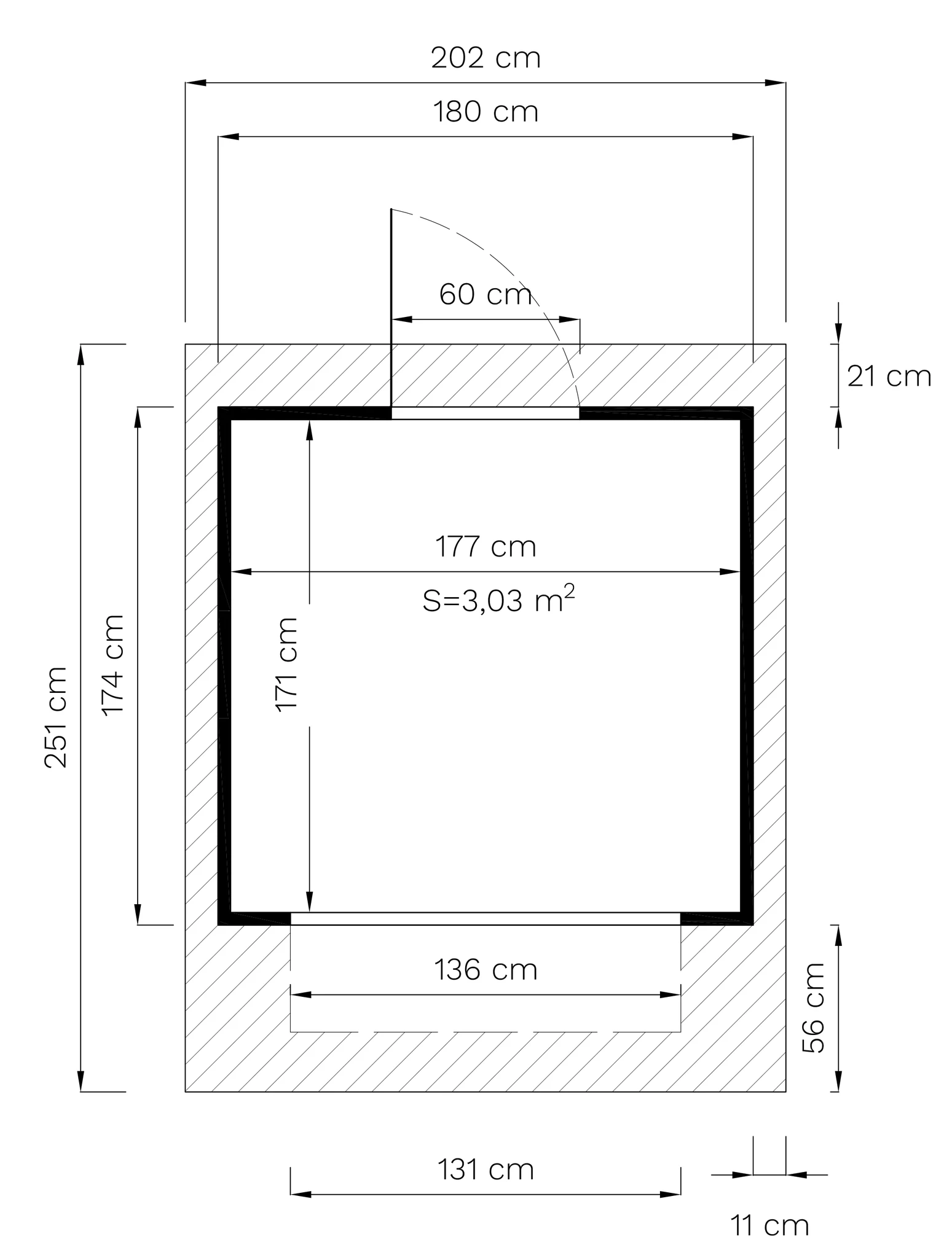
| Spécifications techniques | Dimensions |
|---|---|
| Dimensions murales (L x H) sans avancée de toit | 180 x 175 cm |
| Surface au sol | 3.03 m2 |
| Hauteur au faitage (Max.) | 246 cm |
| Hauteur au faitage (Min.) | 188 cm |
| Volume | 7.1 m3 |
| Épaisseur des murs | 14 mm |
| Surface murale | 13.85 m2 |
| Épaisseur du toit | 12 mm MFP-P5 |
| Surface du toit | 5.73 m2 |
| Inclinaison du toit | 30 ° |
| Charge de neige | 0.85 kN/m2 |
| Ouverture de porte | 61 x 178 cm |
LES PRODUITS DE
JARDIN EN BOIS CONTRIBUENT À LA PROTECTION DE L’ENVIRONNEMENT.
Le label FSC® est une référence internationale stipulant que les produits labellisés contiennent du bois provenant de forêts dont le développement est durable. Ces produits ont été évalués de façon indépendante et sont labellisés en conformité avec les consignes de la FSC.






































%20A_0.4.png)























































































